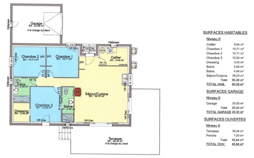
Maison de charme coup de cœur, prête à habiter ! Cette habitation sur une parcelle de 900m2, offre 170m2 habitables, dont une grande pièce à vivre et trois chambres, plus un grand garage et une piscine. C'est une ancienne ferme du 19ème, toute en pierre, qui a été rénovée avec goût et des matériaux haut de gamme en 2018. Pierre, brique, bois et fer se mêlent pour créer une ambiance contemporaine tout en gardant intact le charme de l'ancien. Sols, cloisons, électricité, terrasses, plomberie et menuiseries double vitrage anti effraction de 2018. Elle se situe entre Apt et Rustrel dans un lieu dit calme qui regroupe trois maisons. Elle est mitoyenne par un petit coté mais il n'y a pas de vis à vis. La bâtisse est chauffée par pompes à chaleur et est équipée de panneaux solaires (6,75Kwh) ce qui permet une consommation électrique raisonnable (moins de 150€/mois) . Toiture et façades sont en bon état. Exposition principale ouest. C'est une maison qui reste fraiche en été. Au rez de chaussée, une grande entrée de 25m2 avec un coin cellier permet une grande capacité de rangement. La pièce à vivre fait plus de 60m2, avec une cuisine équipée, et un vaste espace salon. Plusieurs ouvertures et un poêle à bois rendent cet espace des plus agréables. Le sol est en parquet contrecollé chêne et le plafond en voutain et ipn. Comprend également un coin bureau séparé par une verrière ainsi qu'une buanderie avec Wc. On accède à l'étage par un escalier en fer et on y trouve un wc et trois suites d'environ 20m2 chacune, avec une belle hauteur sous plafond et des poutres apparentes. Le sol en osb vitrifié donne un style plus contemporain, et peut être facilement recouvert si vous souhaitez mettre votre touche personnelle. La première suite comporte un espace salle de bain avec douche, double vasque sur ancien établi et baignoire en fonte d'époque, ainsi qu'un dressing de plus de 3m. La seconde comprend un espace salle d'eau et possède deux velux équipés de stores La troisième possède sa propre entrée avec terrasse de 25m2 + petit bout de jardin indépendant. Elle a été séparée et isolée du reste de la maison pour être aménagée en studio avec coin cuisine et lit escamotable. Cela permet une location saisonnière avec un revenu de 500€ la semaine. Si besoin cette pièce peut facilement redevenir une troisième chambre. Le jardin offre une terrasse en bois de 30m2 avec une partie couverte, un abri, et une piscine en dur de 2X4,8m avec une profondeur de 1m et une partie « plage ». Le liner est neuf et elle possède un régulateur automatique de Ph et de niveau d'eau. Deux asperseurs enterrés permettent de garder une pelouse verte même par canicule (mais très peu utilisés car c'est un coin toujours frais ! ) Un platane plus que centenaire, des figuiers, sureau, tilleul et olivier, ainsi qu'une végétation champêtre donnent un espace verdoyant parfait et presque sans entretient. Il y a également un puits, non exploité mais qui a de l'eau presque toute l'année. Un terrain non attenant (à moins de 100m) de 1600m2 peut être cédé avec et permet de créer une aire de jeu ou un potager (non constructible). Le garage fait environ 30 m2 et il est possible d'y aménager un atelier ou du stockage sur un étage déjà en parti construit (reste à fermer deux petits murs, mais ne peut pas devenir une habitation) Un espace parking permet de garer jusqu'à quatre voitures. Taxe foncière environ 1500€, Edf 1800€ à l'année (moins environ 500€ de revente électricité). Raccordé au tout à l’égout (double pompe de relevage neuve) Nouveau Dpe en attente, l'ancien mentionne classe énergétique C et nous avons amélioré, cela devrait devenir B, à confirmer Plus de photos disponibles. Premier échange par email, je vous remercie de me dire quel est votre projet, et quelles sont vos attentes/critères, de manière à voir si le bien vous correspond. Également quel sera le mode de financement et le cas échéant si vous avez déjà consulté votre banque. Pas d'agence merci !