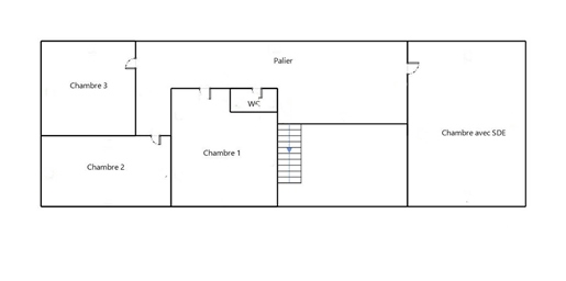
Iad France - Nathalie Sicault vous propose : Nsi Belle maison familiale de 199 m² - 5 chambres - Terrain clos de 6 000 m² avec piscine – Axe Poitiers 28 min / Angoulême 43 min. Cette belle maison de 199 m² habitables offre un cadre de vie paisible et verdoyant, sur un vaste terrain clos et arboré de 6 000 m². Spacieuse, lumineuse et parfaitement entretenue, elle combine confort moderne et charme de la campagne, idéale pour accueillir une famille ou pour un projet de vie. Au rez-de-chaussée, vous découvrirez une grande cuisine aménagée et équipée de 35 m², un séjour de 38 m² comprenant un coin détente, une chambre de 11 m² accompagnée d’un dressing de 10 m², ainsi qu’une salle de bain équipée d’une baignoire, d’une douche et d’un Wc. À l’étage, le palier dessert une suite parentale avec douche et placards intégrés, trois belles chambres de 19 m², 14 m² et 18 m², toutes avec placard et un Wc indépendant. Côté confort, la maison bénéficie d’un système de chauffage mixte associant un poêle à granulés, une cheminée avec insert à bois à air pulsé et des radiateurs électriques. Elle dispose également d’une Vmc, d’un chauffe-eau solaire et de menuiseries en double vitrage, garantissant un bon niveau d’isolation et d’efficacité énergétique. Un local indépendant de 11 m² avec une vasque, idéal pour recevoir ou pour un espace de travail. La fibre sera installée pour cette fin d'année 2025. Les extérieurs sont particulièrement agréables et bien aménagés : une piscine de 5 m par 11 m avec dôme de protection, aspirateur et douche solaire. Un four à pain traditionnel, une grange avec atelier de 55 m², un appentis de 100 m² et un abri de 50 m², offrant de nombreuses possibilités de rangement ou d’aménagement. Enfin, à noter que la fosse septique n’est pas conforme et nécessitera une mise aux normes. Aucun autre travaux majeurs ne sont à prévoir. En résumé, cette propriété allie espace, confort, cadre naturel, tout en restant proche des grands axes et des commodités. Un bien rare à découvrir sans tarder ! Honoraires d'agence à la charge du vendeur. Information d'affichage énergétique sur ce bien : classe Energie D indice 184 et classe Climat A indice 5. Les informations sur les risques auxquels ce bien est exposé, y compris l'obligation légale de débroussaillement, sont disponibles sur le site Géorisques : La présente annonce immobilière a été rédigée sous la responsabilité éditoriale de Mme Nathalie Sicault mandataire indépendant en immobilier (sans détention de fonds), agent commercial de la Sas France immatriculé au Rsac de Niort sous le numéro , titulaire de la carte de démarchage immobilier pour le compte de la société France SAS.Informations Loi Alur : Honoraires charge vendeur. (Gedeon )