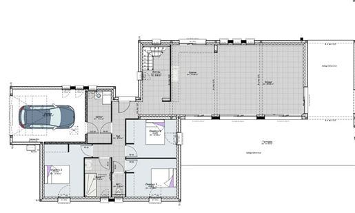
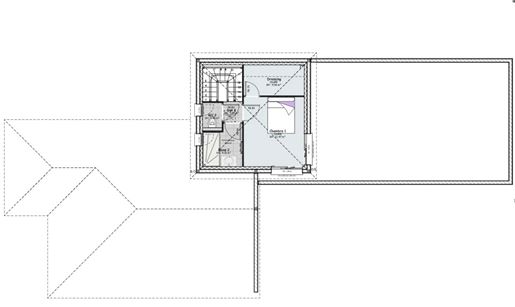
Vous rêvez d'espace, de calme et de liberté tout en restant proche des commodités ? Située dans le charmant village de Chambilly, à seulement 5 minutes des commerces, supermarchés et de la zone commerciale (accès rapide en traversant la Loire), cette maison familiale à fort potentiel n'attend plus que votre projet ! Avec ses deux entrées indépendantes (une au rez-de-chaussée, une à l'étage), son grand jardin de 500 m² et ses volumes généreux, elle offre de nombreuses possibilités : - Résidence principale, - Création d'un appartement indépendant, - Chambres d'hôtes, - Investissement locatif, ou encore gîte familial. Rez-De-Chaussée : convivialité et confort - Une entrée accueillante desservant les différentes pièces, - Une cuisine vaste et fonctionnelle, parfaite pour les repas conviviaux, - Un salon cosy pour vos moments de détente, - Une chambre avec accès direct au jardin, idéale pour une suite parentale, un bureau ou un espace invité, - Une salle d'eau pratique, - Un séjour lumineux de 48 m², véritable pièce de vie familiale, - Une ancienne remise aménagée en buanderie et atelier, ouverte sur le jardin. Entrée indépendante n°1 : accès direct au rez-de-chaussée, idéal pour la partie principale de la maison. Étage : espace nuit et logement indépendant - Quatre chambres de 12 m², confortables et lumineuses, Et surtout, un appartement indépendant avec sa propre entrée : - Cuisine, - Salle d'eau, - Wc séparé, - Deux chambres. Entrée indépendante n°2 : accès direct à cet espace autonome ? parfait pour accueillir un proche, un étudiant, une location saisonnière ou une activité de chambres d'hôtes. Extérieur : un espace rare et fonctionnel - Jardin de 500 m², bien organisé et agréable, - Terrasse à moderniser pour vos repas d'été, - Espace potager, - Plusieurs cabanons de rangement, - Portail roulant sécurisé et stationnement pour plusieurs véhicules. A savoir Des travaux de rafraîchissement sont à prévoir, mais ils vous permettront de personnaliser chaque espace selon vos envies et de valoriser pleinement le potentiel de cette maison unique. Ne manquez pas cette opportunité rare à Chambilly : espace, modularité et multiples projets possibles vous y attendent ! Contactez Éloïse Barnaud au [Coordonnées masquées] pour plus d'informations ou pour organiser une visite. Les informations sur les risques auxquels ce bien est exposé sont disponibles sur (7.28 % honoraires Ttc à la charge de l'acquéreur.)