Maison 4 pièces 121 m²
Quartz Immobilier vous propose ce projet de construction pour une maison sur un terrain à bâtir viabilisé d'une superficie de 970 m², au sein du Domaine des Chevrières sur la commune prisée de Chevagny Les Chevrières, dans un environnement résidentiel calme et verdoyant, offrant une vue panoramique sur le Val Lamartinien.
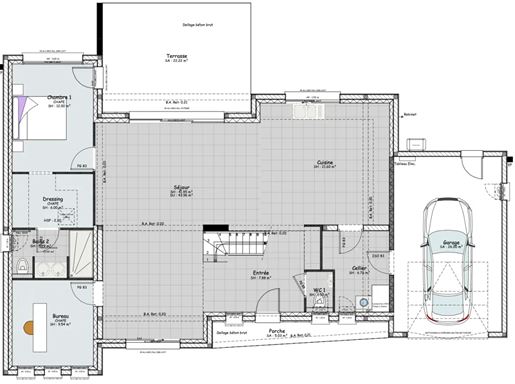
Ce projet de maison contemporaine de plain-pied, construite en toiture terrasse, d'une surface habitable de 121 m², pensée pour offrir confort, modernité et fonctionnalité.
Conçue pour profiter de cette incroyable vue panoramique, cette maison vous séduira par ses volumes généreux et ses prestations haut de gamme.
Agencement intérieur :
Grand séjour lumineux de 50 m²
Cuisine ouverte (à aménager selon vos goûts)
Suite parentale avec dressing et salle d'eau privative
2 chambres confortables
Salle de bain familiale
WC individuel
Buanderie
Garage
Extérieur :
Très grande terrasse de 46 m², entièrement carrelée, idéale pour profiter des beaux jours
Prestations incluses :
Maison livrée clés en main (peintures et parquets inclus)
Menuiseries aluminium gris anthracite
Brise-soleils orientables en aluminium motorisés
Porte d'entrée tierce design
Carrelage grand format (intérieur et extérieur)
Parquet dans les chambres
Douches à l'italienne
WC suspendus
Domotique intégrée
Pompe à chaleur réversible pour un confort optimal hiver comme été
VRD inclus
Un bien moderne, prêt à vivre, aux finitions soignées et aux volumes bien pensés, dans un environnement agréable.
Ce prix comprend :
Le terrain, la maison telle que décrite, l'assurance dommage ouvrage, menuiseries aluminium gris anthracite, brise-soleils aluminium électrique, porte d'entrée tierce, carrelage grand format (y compris terrasse carrelée), parquet dans les chambres, domotique, Pac réversible, Wc suspendu, douches italienne, Vrd inclus.
Ce prix ne comprend pas :
Les frais de notaires, les taxes d'urbanisme, les aménagements extérieurs, la piscine, la cuisine et les frais divers non compris.
Visuel non contractuel.
Ce projet a été réalisé en partenariat avec Val de Saône Bâtiment constructeur de maisons individuelles à Charnay lès Mâcon , qui pourra vous accompagner dans ce projet de construction à adapter en fonction de vos besoins.
La commune de Chevagny les Chevrières offre une proximité directe aux axes routiers et gare Tgv à moins de 10 minutes.
La commune est idéale pour implanter votre future maison, en effet elle bénéficie d'une école maternelle et primaire accessible à pied en 5 minutes, mais également d'une vie associative active.
Vous retrouverez un pôle commercial (Supermarché, boulangerie, fromagerie, pharmacie, cave, ...) à moins de 5 minutes en voiture.
Contactez nous dès maintenant !
Surface : 970 m²
Prix uniquement du terrain : 184 000€ remise de 7 360€ soit 176 640 €.
Coût estimé de la maison par Val de Saône Bâtiment : 349 790 € TTC
Terrain proposé par Quartz Immobilier en partenariat avec Val de Saône bâtiment. Le prix indiqué comprend le terrain + un projet de construction proposé par le constructeur, sous réserve de disponibilité et d'adaptation au terrain. Maison non contractuelle. Prix hors frais de notaire et options.
Partenariat sans engagement contractuel.
Quartz Immobilier est mandaté uniquement pour la commercialisation du terrain à bâtir, Quartz immobilier ne commercialise pas le projet de construction de maison.
Offre valable jusqu'au . Remise correspondant à 4% du prix de vente du lot retenu - Conditions en agence
Les informations sur les risques auxquels ce bien est exposé sont disponibles sur le site Géorisques :
Surface : 121 m²
Non soumis au DPE
Prix du bien : 525790 €
Consommation énergie primaire : Non communiqué
Consommation énergie finale : Non communiqué