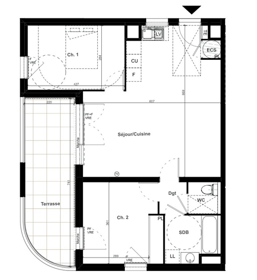
Trois Chambres , Exposition Sud-Ouest , Spacieux , Terrasse , Lumineux , Garage En Sous-Sol , Calme , Écoles , Proche Commodités , Parking Découvrez ce superbe appartement de 4 pièces situé dans un cadre paisible à Clapiers, idéal pour une vie agréable aux portes de Montpellier. Au second étage d'une résidence sécurisée et sous garantie décennale, ce bien de 90 m2 allie confort et modernité. Dès l'entrée, vous serez séduit par l'agencement soigné et l'espace optimisé. À droite, un Wc indépendant, à gauche un cellier fonctionnel pour un rangement pratique. Le coeur du logement, un séjour-cuisine lumineux de 37 m2, vous offre un accès direct à une magnifique terrasse de 28 m2, exposée sud-ouest, idéale pour vos repas en extérieur et moments de détente. L'espace nuit, bien séparé, se compose de trois chambres spacieuses, dont deux donnent sur la terrasse. La plus grande est adaptée aux personnes à mobilité réduite (Pmr), tout comme la salle de bain commune. L'une des deux autres chambres dispose d'une douche, d'un lavabo et d'un placard intégré, offrant un confort supplémentaire. Les plus du bien : - Appartement de 90 m2 - Terrasse de 28 m2 - Trois chambres lumineuses - Salle de bain Pmr et sanitaires adaptés - Séjour-cuisine ouvert et convivial - Deux places de parking en sous-sol - Résidence calme et sécurisée - Sous garantie décennale Un emplacement privilégié, situé à Clapiers, cet appartement bénéficie d'une proximité immédiate avec toutes les commodités essentielles : écoles, commerces, transports et loisirs. Vous serez à quelques minutes de Castelnau-le-Lez, Jacou et Montpellier, tout en profitant du calme d'un quartier résidentiel préservé. Les transports en commun assurent une liaison rapide avec le coeur de Montpellier, tandis que l'accès routier vous permet de rejoindre facilement la ville et ses environs. Pour en savoir plus et organiser une visite, contactez dès maintenant Jean-Pascal Graille . Il se fera un plaisir de répondre à toutes vos questions et de vous faire découvrir ce petit coin de paradis. Rsac Les informations sur les risques auxquels ce bien est exposé sont disponibles sur le site Géorisques : Clapiers - Castelnau-le-Lez - Jacou - Montpellier - appartement - 4 pièces - terrasse - parking - résidence calme - écoles - loisirs - plages - transports en commun