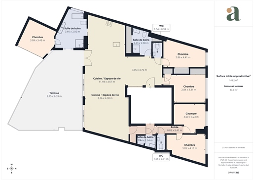
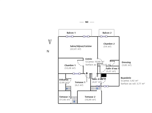
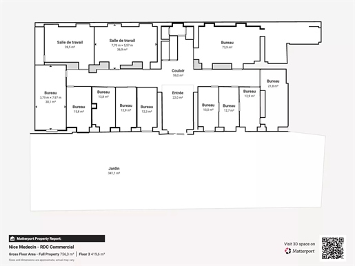
À Nice, en plein hyper-centre, se dresse un espace rare d’architecture et de lumière, véritable écrin pour les ambitions professionnelles. Traversant, élégant, ce lieu se déploie sur 788,7 m² utilisables, adjoints d’un jardin privatif de 341 m² en façade, respirant la quiétude en pleine ville.
Le théâtre de la lumière - Orienté Est-Ouest, le bâtiment se raconte au fil de la journée :
• Le matin, les bureaux à l’avant, exposés à l’Est, s’éveillent avec une lumière douce et dorée, stimulante, inspirante pour les équipes.
• L’après-midi, les salles de réunion et de formation à l’entresol, situées du côté Ouest, se parent d’un soleil rasant, créant une atmosphère propice à la concentration, à l’inspiration, à la réflexion.
Circulation maîtrisée & accès privilégiés avec une entrée indépendante située sur le devant du bâtiment permet d’accéder directement à l’entresol. Cette entrée est idéale pour :
• un centre de formation,
• des réunions,
• des sessions de syndic de copropriété,
le tout sans traverser les autres bureaux ni perturber les activités du rez-de-chaussée.
Trois autres entrées, dont l’entrée de prestige côté avenue, complètent ce dispositif en offrant à la fois visibilité et discrétion.
Ambiance et calme avec Le jardin en façade, clos, grillagé, flanqué de deux portails, est un écrin de verdure baigné en lumière permanente, parfait pour des moments de transition entre travail et détente. Le contraste des ambiances est saisissant : matin lumineux à l’Est, après-midi plus feutré à l’Ouest — chaque espace trouve sa lumière, selon le moment.
Pour quelles ambitions ?
Un lieu pensé pour les exigences du prestige :
• Cabinets d’avocats, études notariales, assurances, syndicats de copropriété, institutions diplomatiques
• Écoles spécialisées, centres de formation professionnelle, ou organisations engagées souhaitant réunir ou former sans compromis sur le standing.