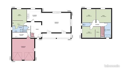
Nous vous proposons cette maison neuve, baptisée ""Barentine"", un modèle de résidence qui allie élégance et fonctionnalité, conçu pour répondre aux attentes des familles modernes. Avec une surface habitable de 115 m², cette maison se distingue par son plan en L, offrant une disposition originale et pratique des espaces de vie. La ""Barentine"" comprend 3 chambres spacieuses, garantissant confort et intimité à chaque membre de la famille. Au total, la maison se compose de 4 pièces, pensées pour maximiser l'espace et la luminosité. L'une des caractéristiques remarquables de ce modèle est son garage intégré, assurant une transition fluide entre l'espace de vie et l'espace de stationnement, tout en offrant un espace de rangement supplémentaire très pratique. La maison dispose également d'une deuxième salle de bains, offrant ainsi une commodité supplémentaire et évitant les embouteillages matinaux. Conforme à la norme Re2020, la ""Barentine"" est une maison basse consommation, conçue avec une attention particulière portée à l'efficacité énergétique et à l'impact environnemental. Cela signifie des factures d'énergie réduites et un confort accru toute l'année pour ses habitants. Les options les plus plébiscitées par nos clients, telles que les menuiseries en aluminium et la domotique, sont disponibles pour personnaliser votre maison selon vos goûts et vos besoins. Ces améliorations non seulement renforcent l'esthétique moderne de la maison, mais améliorent également son efficacité et sa fonctionnalité, rendant la vie quotidienne plus pratique et agréable. Inspirée du charme provençal, la ""Barentine"" présente une architecture cohérente et attrayante. Son design extérieur peut être personnalisé avec un enduit bicolore, ajoutant une touche d'élégance et de distinction. Que vous optiez pour une toiture à 2 ou 4 pans, cette maison vous propose raffinement et confort. Découvrez le plaisir de vivre dans une maison qui allie beauté, confort et durabilité. Nous vous proposons un terrain de construction idéal situé à Bois-l'Évêque, abritant une surface généreuse, entièrement viabilisée et parfaitement adaptée à votre projet de maison. Ce terrain plat jouit d'une situation paisible, tout en étant proche de toutes les commodités nécessaires pour un cadre de vie agréable et fonctionnel. Une opportunité rare à saisir dans un cadre harmonieux.Bois-l'Évêque, situé dans le département de la Seine-Maritime en Normandie, se distingue par son ambiance conviviale et son cadre verdoyant. La ville offre un accès facile aux attractions locales, tout en permettant de profiter des services de proximité tels que commerces, écoles et transports. Son emplacement stratégique allie tranquillité et dynamisme, faisant de ce terrain un choix judicieux pour un futur projet de vie.Ce terrain dispose d'un potentiel exceptionnel pour concrétiser vos rêves de construction. N'hésitez pas à envisager cette opportunité unique d'investissement.À noter qu'en tant que constructeur, nous ne sommes pas mandatés pour réaliser la vente de ce terrain. Référence annonce : 7971