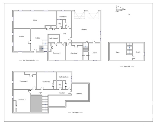
Iad France - Stéphanie Valette vous propose: Sous Compromis Belle maison individuelle de 110,77m2 avec 4 Chambres et Garage sur 696m2 de terrain à Malissard. Construite en 2011 et en excellent état, cette maison offre un cadre de vie idéal pour une famille à la recherche de confort et de fonctionnalité. La maison s'étend sur deux niveaux et propose en rez-de-chaussée une entrée avec placard, une pièce de vie de plus de 45m2 avec cuisine ouverte, un cellier et un wc séparé. A l'étage un pallier avec placard dessert une salle d'eau avec douche, double vasque et toilettes ainsi que 4 chambres avec placard. Les équipements de cette maison ne manquent pas de modernité et vous assurent un confort optimal : plancher chauffant dans toute la maison relié à une pompe à chaleur Air/Eau, Panneaux solaires pour l'eau chaude, menuiseries Pvc double vitrage avec volets roulants électriques, porte de garage automatique, Vmc, fibre optique. Un conduit de cheminée est également en attente si vous souhaitez installer un poêle à bois ou à granules. De plus, l'assainissement autonome est aux normes ! En plus de la maison, vous profiterez d'un garage attenant de 19,39m2 et d'un espace de stationnement privatif extérieur pour 3 véhicules devant la maison. Côté extérieur, une grande terrasse carrelée au sud se prolonge sur le jardin verdoyant et sans vis-à-vis. Cette belle parcelle de 696m2 entièrement clôturée offre un espace agréable pour accueillir à la fois une piscine, des jeux d'enfants, un potager et plus encore! On y trouve déjà un abri de jardin en bois et un puits pour l'arrosage. Dans une copropriété de 2 lots, mais sans aucune charge de copropriété. Le quartier est calme et résidentiel, et offre un cadre de vie agréable. Les commodités et les infrastructures de Malissard (Maison médicale, Boulangerie, Tabac-presse, Pharmacie, Supérette, Café-Restaurant, Pizzéria, école...) sont facilement accessibles, et l'arrêt de bus est accessible à pied, facilitant ainsi le quotidien de toute la famille. Ne laissez pas passer cette opportunité exceptionnelle de devenir propriétaire de cette charmante maison familiale à Malissard. Contactez-Moi dès maintenant pour organiser une visite. La presente annonce immobiliere vise 1 lot situé dans une copropriété de 2 lots au total et ne faisant l'objet d'aucune procédure en cours citée à l'article L. 721-1 du code de la construction et de l'habitation. Montant moyen mensuel de charges déclaré par le vendeur : 0€ par mois (soit 0 € annuel). Honoraires d'agence à la charge du vendeur. Information d'affichage énergétique sur ce bien : classe Energie B indice 85 et classe Climat A indice 2. Les informations sur les risques auxquels ce bien est exposé, y compris l'obligation légale de débroussaillement, sont disponibles sur le site Géorisques : La présente annonce immobilière a été rédigée sous la responsabilité éditoriale de Mme Stéphanie Valette mandataire indépendant en immobilier (sans détention de fonds), agent commercial de la Sas France immatriculé au Rsac de romans sous le numéro , titulaire de la carte de démarchage immobilier pour le compte de la société France Sas. Cc Ht Numéro de mandat : Plus d'information : - Alarme Honoraires à la charge du Vendeur Bien En copropriété : Oui Nombre de lots de la copropriété : 2 Procédure sur le Syndicat des copropriétaires : Non Lieu : Drôme (26)