Villa de Grand Standing avec Piscine et Jardin - 296 m²
Une Oasis de Luxe et de Confort
L'agence vous propose en Exclusivite, à la vente ce bien d’exception.
Imaginez-vous dans ce magnifique domaine de grand standing, offrant un cadre de vie exceptionnel. Avec ses 296 m² habitables et 402 m² au sol, cette propriété allie élégance et fonctionnalité.
Au rez-de-chaussée, une dépendance de 160 m2 avec de nombreux équipements à votre disposition.
Elle est composée d'une entrée, une salle de sport moderne de 53 m2, d'une buanderie, d'un cellier, d'un garage attenant de 47 m2, ainsi qu'une cave creusée dans la roche.(possibilité d'aménagement de l'espace pour une seconde famille). Un stationnement intérieur pour 2 voitures est accolé à cette dépendance
Au premier étage, avec plusieurs espaces confortables aux finitions hauts de gamme, vous apprécierez un magnifique salon-séjour très lumineux de 54 m2 avec une hauteur sous plafond de 2.50 qui ajoute une touche de grandeur ,une cuisine entièrement aménagée et équipée de 27 m2 , parfait pour des moments conviviaux en famille ou entre amis. Une belle suite parentale, une chambre, un bureau, une salle de bain , un Wc séparé.
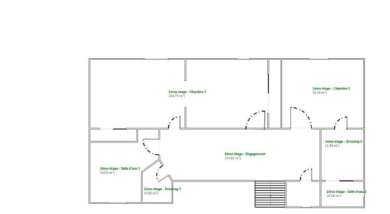
Au deuxième étage, 3 belles chambres et 1 salle de bain 1 salles d'eau, 1 Wc indépendant.
Profitez d'une terrasse ensoleillée et d'un jardin luxuriant de 8000 m², idéal pour les amateurs de nature.
Une piscine de 12x6 m, lieu idéal pour se rafraîchir et se détendre avec ses aires de jeux, ( terrain de boule, terrain d'activité pour enfants, un coin spa, un coin barbecue, une salle de bain extérieure, ainsi qu'un abri de jardin).
La villa est équipée d'un système domotique général, d'un aspirateur centralisé, d'un adoucisseur d'eau, d'un système de video surveillance interne et externe, et d'une pompe à chaleur récente, une micro station d'épuration et un forage irrigation de tout le domaine.
Exposée sud-est, cette villa offre une vue imprenable sur la campagne environnante.
Située à proximité de toutes les commodités, cette villa est à 3 minutes en voiture des commerces du centre ville.
Ne manquez pas cette opportunité de vivre dans une résidence de luxe, alliant confort et prestige. Contactez-Nous dès maintenant pour une visite!
MANDAT R1915
Taxe Fonciere : 3546 €
Jean-Jacques Dignet
Sas 67 Immo - Siège social : 28 bd. Michelet - 13008 Marseille
980 712 319 Rcs Marseille. Les informations sur les risques auxquels ce bien est exposé sont disponibles sur le site Géorgiques :