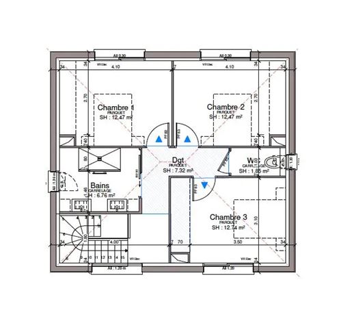
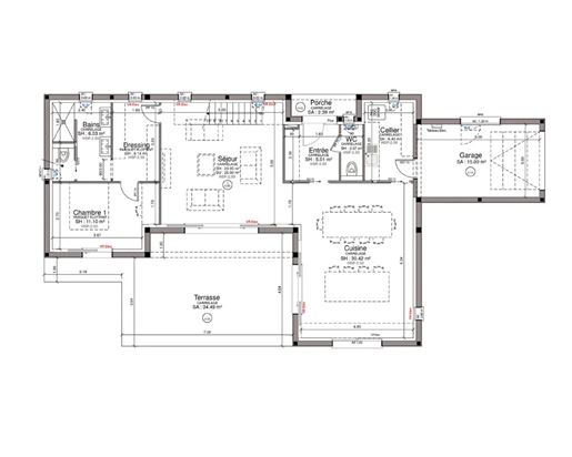
Informations du terrain : Découvrez ce nouveau lotissement intimiste de seulement 7 lots, idéalement situé, sur la commune très recherchée de Grenade-sur-Garonne.Pensé pour offrir un cadre de vie paisible et verdoyant, ce projet bénéficie dune belle exposition, dun environnement calme, et de deux espaces verts attenants qui participent pleinement au charme et à la convivialité du site. À proximité du centre-ville, vous profiterez également demplacements de stationnement et dune agréable présence végétale, faisant de ce lotissement un lieu de vie harmonieux et pratique au quotidien.Livraison prévue : juin 2026 / Terrains entièrement viabilisésSur les 7 lots, 2 sont déjà réservés il ne reste donc plus que 5 opportunités :Prix à partir de 126 000 jusquà 134 000 pour le plus grand terrainGRENADE Maison Turquoise. Au cur dun quartier dynamique, à proximité des commerces, sur ce terrain de 704 m², à Grenade, apporté par notre partenaire foncier sous réserve de disponibilité, Villas et Maisons de France, constructeur régional avec un process de haute qualité environnementale vous propose de construire votre maison neuve sur-mesure. Découvrez les coulisses de la conception de votre maison et rencontrez les dessinateurs-métreurs de notre bureau d'étude spécialisé, basés dans nos locaux, à Toulouse ou à Bordeaux.La Maison "Turquoise", d'une superficie de 153m², offre un cadre exceptionnel au goût du jour. Cette somptueuse maison à étage comprend 4 chambres, dont, au rez-de-chaussée, une sublime suite parentale de 11,22 m² avec dressing de 6,94 m² et salle de bains de 4,57 m². Un séjour de 43,94 m² offrant une belle pièce à vivre avec la cuisine ouverte de 15,91 m². Au niveau de l'étage, 3 belles chambres de près de 13 m² accompagné d'une salle de bains de 6,76 m², créant un espace de relaxation ultime.Les larges baies vitrées s'ouvrent sur une superbe terrasse de 49,52 m², vous invitant à profiter de l'air frais en toute plus, un garage de 28,36 m² et un carport de 28,98 m² pour la sécurité de vos véhicules.La Turquoise combine harmonieusement la fonctionnalité et l'esthétique, créant un cocon lumineux et confortable pour une qualité de vie indétrônable.Avec un process de haute qualité environnementale, Villas et Maisons de France s'engage à réduire l'empreinte carbone de votre projet. Nous garantissons et contrôlons la conformité avec la Re 2020, l'étiquette énergie A, ainsi que la qualité du traitement de l'étanchéité à l'air, le tri sélectif et la valorisation des déchets. Votre interlocuteur dédié vous accompagnera dans toutes les étapes de votre projet, que ce soit pour le financement, l'obtention du permis de construire, ou l'acte authentique d'acquisition du terrain. Dès le début de votre chantier, suivez en temps réel et en images l'avancement de vos travaux grâce à votre Espace Client Privilège.Notre Contrat de Construction de Maison Individuelle vous garantit une construction sûre et durable, avec la Garantie de Livraison, l'Assurance Décennale Dommages Ouvrage, la Garantie de Parfait Achèvement et Biennale.Pour concrétiser votre rêve d'une maison exceptionnelle, contactez Sébastien Hoybel , et découvrez l'excellence à proximité des commerces.Contactez Sébastien Hoybel ou (Villas et Maisons de France).Prix avec assurance dommages-ouvrage comprise, Vrd non compris, terrain viabilisé, frais de notaire non compris, frais divers non compris. Terrain sélectionné et vu pour vous sous réserve de disponibilité et au prix indiqué par notre partenaire foncier. Plans contractuels, visuels non contractuels.Cette annonce a été créée et diffusée avec le logiciel Vitahome.