Dans le centre historique de Grimaud, rare maison pleine de charme d'environ 400 m² avec une très belle vue sur la mer et le golfe de Saint-Tropez. Cour intérieure, caves, garage. Cette maison familiale ancienne, sur 2 niveaux, se compose de :
- 1er appartement principal avec salle à manger, cuisine, 1 chambre, 1 salle de bains, Wc
- 2ème appartement avec cuisine, 1 chambre + balcon, buanderie, salle de bains, Wc
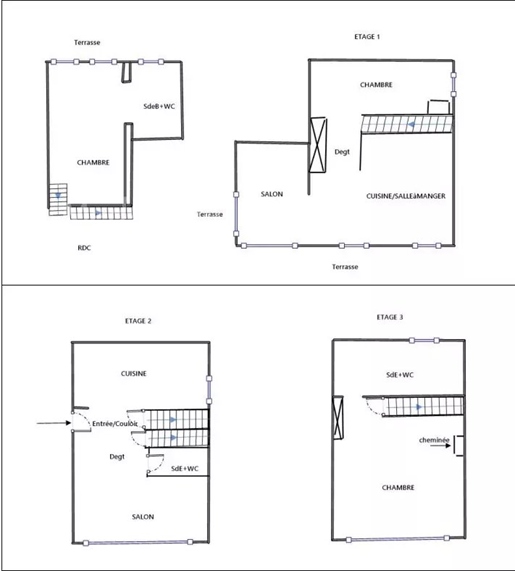
1er étage :
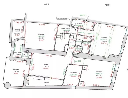
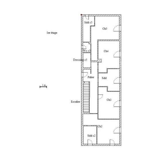
- 3ème appartement : séjour, kitchenette, 1 chambre vue château, salle de bains, Wc, terrasse vue mer
- 4ème chambre, kitchenette, terrasse vue mer, salle de douche, Wc
- 5ème chambre, côté château, salle de douche, Wc
2ème étage :
- 6ème chambre vue mer, salle de douche, Wc
- 7ème chambre vue château, salle de douche, Wc
- 8ème chambre, terrasse vue mer et château, kitchenette
2ème bâtiment :
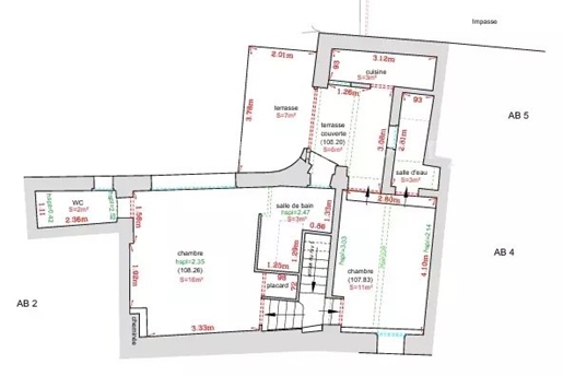
Appartement comprenant :
- Salle à manger/cheminée, cuisine, salle de bains
- 2 chambres, 2 salles de bains, 2 Wc, terrasse vue mer
Terrasse sur toit avec vue mer et château. Grande cave, garage, atelier, chaufferie, salle de douche