Nouveau PRIX
Charmante maison familiale de 5 chambres avec piscine à deux pas du village, des écoles et des transports !
Située dans un quartier recherché, à seulement 5 minutes à pied du c½ur du village et de ses commodités (écoles, cafés, restaurants, boulangeries, pharmacie, épiceries, bibliothèque...), cette belle maison individuelle d'environ 170 m² sur deux niveaux est parfaite pour accueillir une grande famille dans un cadre chaleureux et fonctionnel.
Un arrêt de bus se trouve juste en face de la maison, facilitant les trajets vers Aix-en-Provence ou le collège de Peyrolles-en-Provence. Le site de Cadarache est également rapidement accessible (15-20 minutes en voiture).
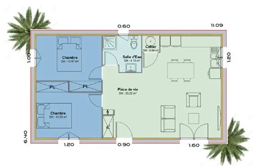
Au rez-de-chaussée, profitez d'une entrée avec rangements, d'un wc séparé, d'une buanderie et d'une vaste salle à manger/séjour lumineux avec cheminée apportant du charme et du confort. La cuisine, ouverte et très fonctionnelle, communique directement avec l'espace de vie. La cuisine et le séjour ont un accès vers la piscine et le jardin.
Un joli bureau, qui se ferme avec des portes vitrées, se trouve côté séjour parfait pour le télétravail ou une bibliothèque. Dans l'espace nuit, vous trouverez 2 chambres et une salle de bain.
A l'étage : 3 chambres, une salle d'eau, un wc séparé et un agréable espace de 19 m2 parfait pour une salle de jeu, une bibliothèque ou un deuxième salon par exemple.
Vous apprécierez les nombreux rangements, parfait pour un quotidien pratique et organisé.
Le jardin d'environ 640 m2 est joliment paysagé et offre un très bel espace piscine pour vos moments de détente estivale, une terrasse couverte, et également un coin potager et un poulailler.
Un garage, un carport et un abri de bois complètent cette propriété qui est un vrai coup de c½ur, prête à accueillir votre famille dans un environnementagrébale et idéalement situé !
Jouques :
Jouques est un charmant village provençal niché au c½ur du Parc naturel régional de la Sainte-Victoire, offre un cadre authentique entre collines, vignes et oliveraies. Situé à une trentaine de kilomètres d'Aix-en-Provence, ce village au riche patrimoine séduit par ses ruelles pittoresques, ses maisons de pierre et ses fontaines anciennes. Jouques est également connu pour ses traditions, ses marchés aux saveurs locales et ses nombreux sentiers de randonnée qui permettent de découvrir des paysages typiquement méditerranéens. Alliant douceur de vivre et patrimoine historique, Jouques incarne à merveille l'esprit de la Provence.
Les informations sur les risques auxquels ce bien est exposé sont disponibles sur le site Géorisques :
Les honoraires d'agence sont compris dans le prix de vente, ici pour 22 500 ¤ (dont Tva dûe à l'état). Ils sont payables par l'acquéreur et non le vendeur, ce qui permet à l'acquéreur de payer des frais de notaire plus faibles.
Prix net vendeur : 527 500¤