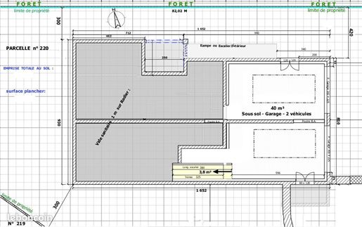
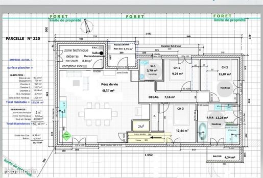
Terrain Constructible de 906 m² dans ce quartier résidentiel espacé (en diffus), à 2,5 km du centre de 07800 Charmes-sur-Rhône et St Georges les bains, . «Prêt A Construire » grâce au permis Libre De Constructeur. (Gain énorme de temps sans autre démarche). Future maison sans vis à vis. Besoin d’un assainissement individuel. Situé quartier de «Suze», cadastrée Za 220, bordée par un terrain boisé en Zone Naturelle. Terrain en surplomb d’un chemin communal très peu passant, avec vue, en pente moyenne, d'ou maison avec sous sol, laissant l'espace de vie en rez de jardin. Maison exposée Sud. Tous les réseaux sont sur le chemin communal (eau potable, électricité, téléphone, internet et Fibre). Viabilisation en cours. Lieu paisible, à proximité parcours pédestres et de randonnées, balades à vélo, à cheval... À seulement 10 minutes des grands axes routiers, des villes pour le travail, les soins, ou hôpitaux. Toutes Commodités et loisirs se trouvent au village (commerces, écoles, médecins, dentistes, pharmacie, infirmiers, station essence, ramassage scolaire, Gymnase, terrain de sport, piscine, salle des fêtes) 15 000€ déjà investis que vous n'aurez pas à débourser en plus du prix d'achat du terrain pour : - Plans maisons réalisés - Etudes obligatoires (G2) de contrôles de sols, matériaux et bâtiments, concernant la future construction avec la Certification de conformité et de Contrôle aux dernières normes (Re2020). - L’attestation certifiée conforme du Spanc pour l’assainissement individuel. - Création faite du chemin d’accès à la maison. - Création faite d'un parking extérieur en bord de route de 2 voitures (devenu obligatoire) - Viabilisation Eau et Edf (en cours) Le permis de construire consiste en une Maison d'environ 113 m² habitable (3 chambres, une grande pièce de vie, salle de bain et Wc, local technique) sur un sous-sol semi-enterré (double garage + vide sanitaire) laissant l'espace de vie en rez-de-jardin. Agence, Merci de s’abstenir.