Retourner aux résultats
Annuler Définissez la zone de recherche
Retourner aux résultats
Récupérer la localisation d'origine
Relancer la recherche ici

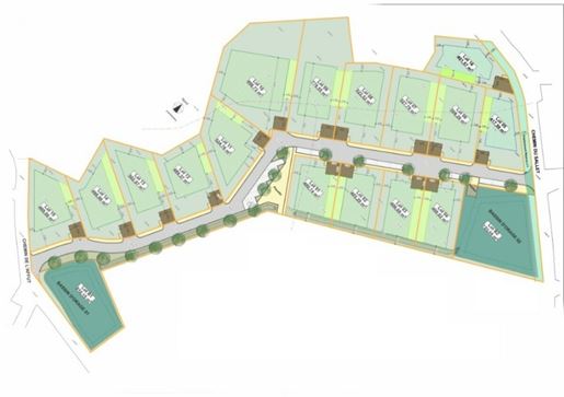
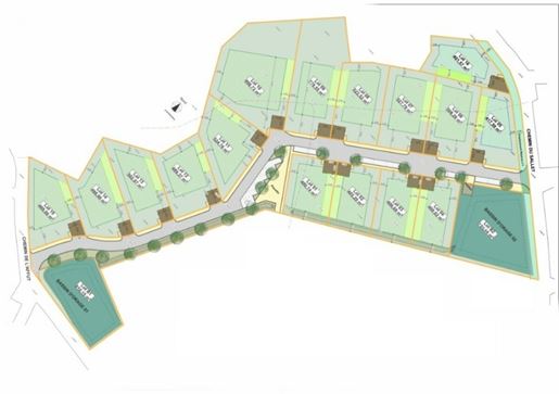
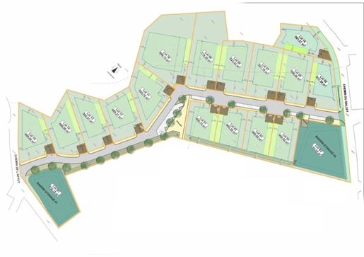
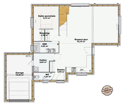
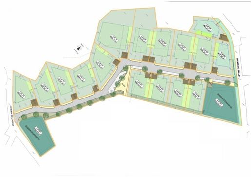
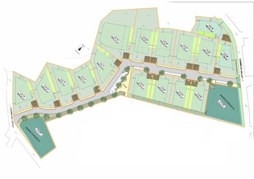
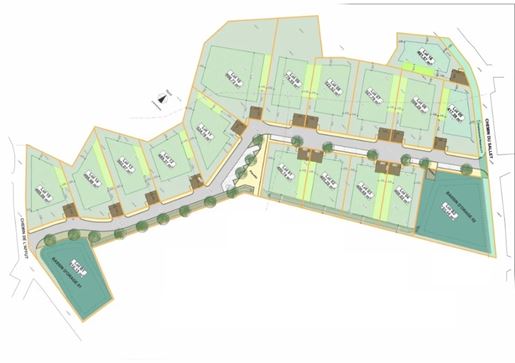
19 maisons à vendre à Lirac

Vous avez supprimé0 annoncesur 19 résultat(s).
Tout afficher