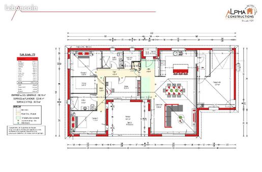
Terrain à bâtir Martel (46600) Projet de construction à Martel (Lot) Idéalement situé sur la commune prisée de Martel, ce superbe projet de construction offre un cadre de vie rare : stratégique, agréable et parfaitement connecté aux points essentiels de la région. Véritable carrefour entre les sites les plus recherchés du Lot et de la Dordogne, Martel séduit par sa douceur de vivre, son patrimoine, et ses nombreux commerces et services accessibles à l'année. Une ville dynamique où « il fait bon vivre », tout simplement. Un terrain magnifique, proche de tout Le projet prend place sur un très joli terrain, à la fois au calme et à seulement quelques minutes du centre de Martel. Vous profiterez d'un environnement verdoyant, lumineux, et d'un accès immédiat aux écoles, restaurants, marchés, artisans, et aux lieux emblématiques de la région (Rocamadour, vallée de la Dordogne, sites touristiques majeurs...). Un emplacement idéal pour conjuguer tranquillité et praticité au quotidien. Une maison au design unique, pensée pour le confort D'une surface habitable de 120 m² (hors garage), cette maison moderne et élégante se distingue par son architecture originale en forme de U, offrant une vraie identité et une organisation des espaces particulièrement harmonieuse. - Un porche accueillant marque l'entrée et vous invite à découvrir un intérieur généreux et baigné de lumière : - Un vaste salon de plus de 55 m² avec cuisine ouverte, spacieux, convivial et idéal pour recevoir. - Une cuisine fonctionnelle, parfaitement connectée à un cellier pratique, lui-même attenant au grand garage avec coin technique et espace dédié aux équipements. - Un local technique isolé, idéalement placé côté nuit, pour accueillir chauffe-eau et autres installations en toute discrétion. Un espace nuit chaleureux et bien agencé La maison propose un coin nuit très agréable, composé de : - Un bureau, idéal pour le télétravail ou un espace créatif, - Une grande suite parentale, confortable et lumineuse, - Une salle de bain moderne et spacieuse comprenant : une double vasque, un Wc, une grande douche italienne contemporaine. - Un atout rare : la terrasse couverte Véritable coup de coeur du projet, la maison s'ouvre sur une très grande terrasse couverte, à la fois originale et cocooning. Elle offre un confort supplémentaire, crée un espace extérieur utilisable en toute saison, tout en préservant la luminosité exceptionnelle de la maison. Un lieu parfait pour vos petits déjeuners, soirées d'été ou moments de détente à l'abri des regards. Une maison jolie, lumineuse, confortable, et pleine de caractère, sur un terrain idéalement placé dans une commune recherchée : un projet qui a tout pour plaire ! Pour plus de renseignements, Marie Munoz au [Coordonnées masquées] Référence annonce : Mm