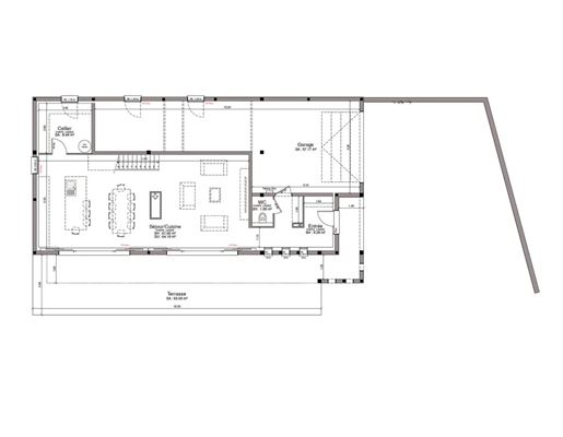
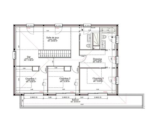
Merville Maison Quartz. Dans un quartier paisible, à la fois très bien exposé mais aussi proche des commerces et services, cette parcelle de notre partenaire foncier, sous réserve de disponibilité, de 424 m², pourrait accueillir votre projet ! Villas et Maisons de France, constructeur régional expérimenté et avec un process de haute qualité environnementale, est spécialiste de la maison éco responsable sur-mesure.Notre modèle Quartz est une maison atypique, de 147m², à 3 niveaux, offrant un espace de vie spacieux, fonctionnel et confortable.Au rez-de-chaussée, la pièce de vie de 70,97m² comprend un séjour et une cuisine communicante avec une terrasse de 22,68m² pour profiter de l'extérieur. Côté nuit, la maison compte 3 chambres.Au rez-de-chaussée, on trouve un dressing de 6,04m² et une salle d'eau de 3,93m² desservant 2 chambres de 14,04m² et 9,21m². À l'étage, une seconde salle d'eau de 7,33m² dessert les 2 autres chambres de 12,48m² et 12,35m² et qui, elles, disposent de 2 toitures-terrasses. Enfin, le sous-sol de 86,91m² offre de l'espace pour le rangement et le stationnement des véhicules.Chez Villas et Maisons de France, notre détermination envers la préservation de l'environnement et la réduction de notre empreinte carbone est absolue. Nous respectons rigoureusement les normes de la Re 2020, visant une étiquette énergie A, garantissant une excellente étanchéité, tout en mettant en place le tri sélectif et la valorisation des déchets. De plus, nous vous accompagnons de manière complète à chaque étape de votre projet, depuis le financement jusqu'à l'obtention du permis de construire. Vous avez même la possibilité de suivre le déroulement de votre chantier grâce à votre Espace Client Privilège.Notre Contrat de Construction de Maison Individuelle est la garantie de votre tranquillité d'esprit, avec notre engagement envers la Garantie de Livraison, l'Assurance Décennale Dommages Ouvrage, la Garantie de Parfait Achèvement et la Garantie Biennale.Optez pour Villas et Maisons de France, et assurez-vous une maison à la fois sécurisée, durable et conçue sur mesure. N'hésitez pas à dès aujourd'hui votre chargé de projet, Sébastien Hoybel, , et construisons ensemble la maison qui correspond à vos besoins, au cur dun environnement alliant parfaitement calme et praticité.Contactez Sébastien Hoybel ou (Villas et Maisons de France).Prix avec assurance dommages-ouvrage comprise, Vrd non compris, terrain viabilisé, frais de notaire non compris, frais divers non compris. Terrain sélectionné et vu pour vous sous réserve de disponibilité et au prix indiqué par notre partenaire foncier. Plans contractuels, visuels non contractuels.Cette annonce a été créée et diffusée avec le logiciel Vitahome.