Grande maison familiale avec atelier – 211 m² habitables + 180 m² à aménager à Couhé (Valence-en-Poitou)
À 30 minutes de Poitiers – 1h30 de La Rochelle
Vous rêvez d'espace, de caractère, et de possibilités ? Cette belle maison située en plein cœur de Couhé est faite pour vous.
Derrière sa façade discrète se cache une maison familiale pleine de charme et baignée de lumière, accompagnée d'un ancien atelier de 180 m² répartis sur deux niveaux, prêt à être transformé selon vos envies : garage, logement indépendant, bureau ou espace artistique… à vous d'inventer la suite !
Cette grande maison familiale offre de très beaux volumes et de nombreuses possibilités d'aménagement. Au rez-de-chaussée, on découvre une entrée de 8 m² avec escalier desservant l'étage et l'atelier, une vaste salon de 30 m², une salle à manger de la même superficie ainsi qu'une cuisine aménagée de 20 m² avec accès à la cave. Une véranda de 15,5 m² intégrant un espace buanderie et un toilette complète ce niveau, tout comme un local de stockage de 15 m² et un grand atelier de 80,5 m² accessible également depuis la rue.
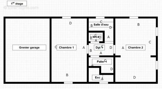
Le premier étage s'ouvre sur un palier de 10,5 m² qui dessert une chambre de 14,5 m² avec rangements et point d'eau, une grande chambre de 31,5 m² équipée de rangements, une salle de bains de 10,5 m² comprenant baignoire, meuble double vasque et sèche-serviette, une salle d'eau de 12 m² avec douche et lavabo, ainsi qu'une quatrième chambre de 15,6 m².
Le deuxième étage propose un palier de 3 m², une cinquième chambre de 14,5 m² avec douche et lavabo, deux pièces aménageables de 30 m² et 22,5 m² pouvant aisément être transformées en chambres supplémentaires, ainsi qu'une sixième chambre de 15 m².
De nombreux travaux ont été réalisés ces dernières années : aménagement du second étage en 2015, installation d'un adoucisseur d'eau en 2016, réfection de la toiture en 2019, isolation du plancher du rez-de-chaussée en 2020 et divers travaux de plomberie en 2021.
Côté confort, la maison est équipée d'un chauffage par pompe à chaleur diffusé par radiateurs, complété par une chaudière à fioul. La production d'eau chaude est assurée par un ballon électrique. Le bien dispose également d'un adoucisseur d'eau, de menuiseries en double vitrage et est raccordé au tout-à-l'égout.
Et le bonus… un atelier à fort potentiel
L'ancien atelier de 180 m² (2 x 90 m²) peut être aménagé à votre guise. Le rez-de-chaussée peut facilement être transformé en garage, tandis que l'étage offre de multiples possibilités d'aménagement.
Un emplacement idéal, à deux pas des commerces, écoles et services, avec un accès rapide à la N10, cette maison est parfaitement située pour les trajets vers Poitiers ou Angoulême.
Prix de vente : 228 000 €
Pour plus d'informations ou pour programmer une visite, contactez- moi:
Belén Pérez Lemes
voir le numéro
Cette annonce référence 282006 vous est présentée par votre agent commercial Bsk Immobilier Belen Perez (Ei) immatriculé au Rsac de Poitiers (86000) sous le numéro voir le numéro0017.
Prix du bien : 228 000,00 €
Les honoraires d'agence sont à la charge du vendeur.
A propos des performances énergétiques :
Date de réalisation du diagnostic énergétique :
Score Dpe : 156 kWhEP/m²/an
Score Ges : 23 kgepCO2/m²/an
Montant estimé des dépenses annuelles d'énergie pour un usage standard : entre 2230.00 € et 3090.00 € par an. Prix moyens des énergies indexés sur l'année 2021 (abonnements compris).
Les informations sur les risques auxquels ce bien est exposé sont disponibles sur le site Géorisques :