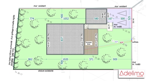
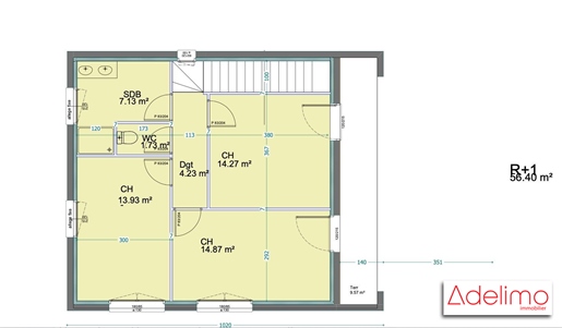
Maryse et William, vos conseillers en immobilier, . Saint-Gilles (30) - A 15mn de Nîmes (30), à 25mn de la mer, villa (5 pièces 4ch), d'environ 125m² hab., aux Frais de Notaire Réduits, très lumineuse, de type contemporain à toit plat, offrant des volumes agréables, en Rdc: grand garage de 20m². Par un escalier, entrée, ensemble cuisine / salon / séjour, avec accès sur une grande terrasse bois, très ensoleillée de 24m², avec vue imprenable, une suite parentale avec dressing, salle d'eau, Wc et dégagements. Au 1er étage: un palier qui dessert 3 chambres dont 2 avec accès balcon, salle de bains et Wc. De très belles prestations de qualité, climatisation réversible gainable, menuiseries Pvc, double vitrage, volets roulants électriques avec télécommande individuelle, de nombreux placards, chauffe-eau thermodynamique, carrelage, faïence et visiophone. Le tout sur un terrain piscinable, clos, de 510m², construction 2024 avec garanties décennales complètes. Disponible. Quartier très calme, proche de toutes commodités, commerces, groupes scolaires, liaisons bus, axes routiers et autoroutiers, et gares Sncf. A Voir Très VITE.
Honoraires à la charge du vendeur. Classe énergie A, Classe climat A Montant moyen estimé des dépenses annuelles d'énergie pour un usage standard, établi à partir des prix de l'énergie de l'année 2021 : entre 449.00 et 607.00 . Les informations sur les risques auxquels ce bien est exposé sont disponibles sur le site Géorisques : .
Votre conseiller Adelimo Immobilier : Maryse Et William LÉZIN
Agent commercial (Entreprise individuelle)
Rsac 521 656 066
Rcp BEAZLEY.
Une reconversion dans l'immobilier se profile ? Le groupe Adelimo Immobilier recrute, contactez-moi pour plus de renseignements.