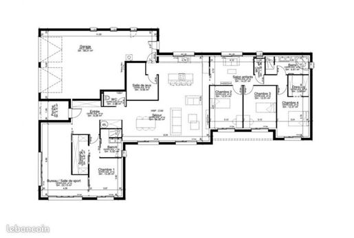
Projet de construction d'une maison 187 m² avec terrain à Saint-Jory (31) au prix de 663269€ Dans un cadre idéal, très bien exposée et proche des commerces et services, cette parcelle (apportée par notre partenaire foncier sous réserve de disponibilité), d'une superficie de 2002 m², peut accueillir, dès aujourd'hui, votre projet de construction. D'un style épuré, fonctionnel et accompli. Cette maison T7 est modifiable, à votre convenance, comme tous les créations Villas et Maisons de France. La "Jade" présentée ici, dispose de 187m² habitables. Pertinent, son aménagement intérieur comprend une agréable suite parentale de 13,20 m² suivi d'une salle de bains de 5,32 m² pour s'y détendre un maximum. Un dressing ergonomique de 5,61 m² pour y ranger une grande collection de vêtement. 3 chambres spacieuse d'environ 12,50m². Une salle spacieuse salle de bains de 6,91 m². Une pièce à vivre chaleureuse de 56,82 m² qui comprend salon et salle à manger. Une grande salle de jeux de 9,06 m² pour amuser vos enfants. La cuisine ouverte prolonge ce sentiment de proximité et prévoit des rangements significatifs dans le cellier. La maison "Jade" offre une belle terrasse ouverte de 71,00 m². Avec un process de haute qualité environnementale, nous garantissons la Re 2020, l'étiquette énergie A, la qualité de notre traitement de l'étanchéité à l'air, le tri sélectif et la valorisation des déchets. Villas et Maisons de France vous apporte aussi la sécurité du Contrat de Construction de Maison Individuelle (Ccmi), en délivrant Garantie de Livraison, Assurance Décennale et Dommages Ouvrage, Garantie de Parfait Achèvement et de Bon Fonctionnement pris en charge par notre propre Sav. Profitez d'un accompagnement performant pour vos démarches administratives et bénéficiez d'un Espace Client Privilège pour suivre votre construction en images et en temps réel. Choisir un constructeur engagé pour la construction durable, c'est dans l'air du temps ! Arnaud Mercier au O6 , spécialiste de la Maison Individuelle avec process de haute qualité environnementale en Occitanie. Contactez Arnaud Mercier au O6 ou au O5 (Villas et Maisons de France). Prix avec assurance dommages-ouvrage comprise, Vrd non compris, terrain viabilisé, frais de notaire non compris, frais divers non compris. Terrain sélectionné et vu pour vous sous réserve de disponibilité et au prix indiqué par notre partenaire foncier. Plans contractuels, visuels non contractuels. Réf. Tmam Cette annonce a été créée et diffusée avec le logiciel Vitahome. Référence annonce : mander plus d'informations