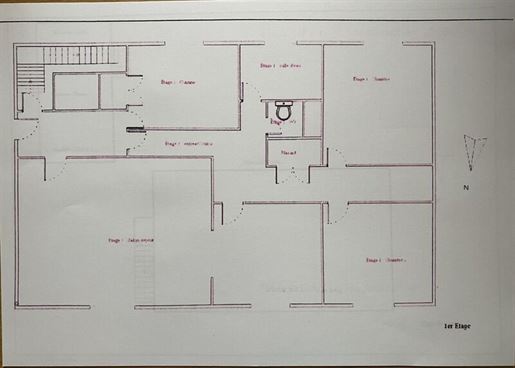
Iad France - Manon Le Dreff vous propose : Ensemble Immobilier – Saint-Nicolas-Du-Pélem 317 m² – 15 pièces – jusqu’à 5 logements indépendants Au cOEur du bourg dynamique de Saint-Nicolas-du-Pélem (22480), cet immeuble rénové avec soin offre un potentiel remarquable, tant pour un investissement locatif, un projet familial, qu’un usage mixte mêlant habitation et activité professionnelle. 317 m² habitables répartis sur trois niveaux, complétés par une maisonnette indépendante et un sous-sol complet. 1) Local / appartement en rez-de-chaussée Un espace polyvalent comprenant : deux pièces principales, un bureau, une pièce annexe, des sanitaires. Idéal pour un usage professionnel, une activité libérale ou la création d’un logement supplémentaire. 2) Grand appartement T6 sur trois niveaux Rez-de-chaussée : superbe cuisine aménagée et équipée, spacieuse et lumineuse. Premier étage : séjour, deux chambres, salle de bains (baignoire + cabine de douche), Wc séparés. Second étage : trois chambres supplémentaires, salle d’eau, Wc séparés. Un logement familial de belle superficie offrant confort, luminosité et volumes généreux. 3) Appartement T3 au premier étage : pièce de vie avec cuisine aménagée et équipée, deux chambres, salle de bains avec Wc. Parfait pour un revenu locatif stable. 4) Maisonnette indépendante T2 Accessible depuis la cour, à l’abri des regards — un vrai atout pour un gîte ou un logement d’appoint. Rez-De-Chaussée : pièce de vie avec cuisine équipée, Wc séparés. Étage : chambre, dressing ou bureau, salle d'eau avec Wc. 5) Sous-sol complet divisé en quatre parties : caves, rangements, atelier… Un espace rare et pratique. Extérieurs : cour fleurie, petit jardin, terrasse couverte. Atouts majeurs : jusqu’à 5 logements distincts : énorme potentiel d’aménagement, travaux récents (une partie neuve), rentabilité locative possible, emplacement privilégié au centre du bourg, commerces accessibles à pied, parfait pour : investissement locatif, activité professionnelle + habitation, projet familial ou habitat partagé, résidence principale avec dépendances. Me pour plus de renseignements. Honoraires d'agence à la charge du vendeur. Information d'affichage énergétique sur ce bien : classe Energie D indice 234 et classe Climat B indice 7. Les informations sur les risques auxquels ce bien est exposé, y compris l'obligation légale de débroussaillement, sont disponibles sur le site Géorisques : La présente annonce immobilière a été rédigée sous la responsabilité éditoriale de Mme Manon Le Dreff mandataire indépendant en immobilier (sans détention de fonds), agent commercial de la Sas France immatriculé au Rsac de Saint Brieuc sous le numéro , titulaire de la carte de démarchage immobilier pour le compte de la société France SAS.Informations Loi Alur : Honoraires charge vendeur. (Gedeon )