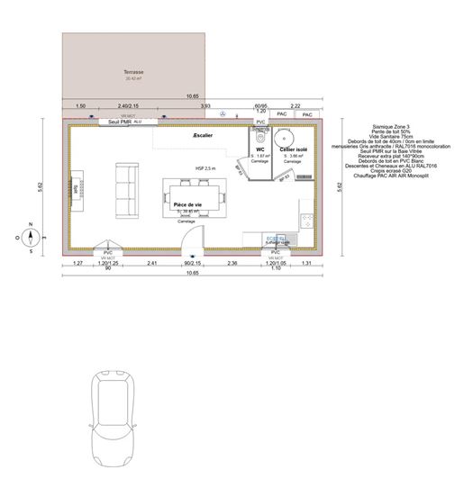
Offre Exceptionnelle Pour Les 50Ans Du Groupe : Des prestations Offertes et de nombreux packs haut de gamme. Profitez d'un accompagnement clé en main et Prestigieux pour votre projet de construction. Demeures Caladoises, constructeur de maisons individuelles depuis 1975, vous propose un projet de construction exceptionnel et sur-mesure à Sainte-Blandine. A proximité de la Tour du Pin. Profitez d'une parcelle de 569 m2, dotée d'une belle exposition, dans un environnement calme, résidentiel et verdoyant. Descriptif du projet : Découvrez un cadre de vie harmonieux et fonctionnel grâce à ce projet de construction unique que vous pourrez personnaliser selon vos besoins et vos envies. Cette maison à étage de 135 m² habitables, avec garage, est idéale pour une famille à la recherche de confort et de modernité, dans un cadre dynamique et privilégié. Elle dispose d'une entrée fonctionnelle, d'une spacieuse et lumineuse pièce de vie, d'un cellier, de deux Wc séparés, d'une salle de bain, d'un espace de rangement. Elle se compose également de 4 chambres dont une suite parentale avec dressing et salle d'eau privative. Espaces de vie spacieux et lumineux avec des prestations soignées. Conforme aux dernières normes thermiques. N'hésitez pas à nous pour plus d'informations sur ce projet de construction personnalisable selon vos besoins et vos envies. Offre Exceptionnelle Pour Les 50Ans Du Groupe : Des prestations Offertes et de nombreux packs haut de gamme. Profitez d'un accompagnement clé en main et Prestigieux pour votre projet de construction. Demeures Caladoises, constructeur de maisons individuelles depuis 1975, vous propose un projet de construction exceptionnel et sur-mesure à Sainte-Blandine. A proximité de la Tour du Pin. Profitez d'une parcelle de 753 m2, dotée d'une belle exposition, dans un environnement calme, résidentiel et verdoyant. Descriptif du projet : Découvrez un cadre de vie harmonieux et fonctionnel grâce à ce projet de construction unique que vous pourrez personnaliser selon vos besoins et vos envies. Cette maison à étage de 120 m² habitables, avec garage, est idéale pour une famille à la recherche de confort et de modernité, dans un cadre dynamique et privilégié. Elle dispose d'une entrée fonctionnelle, d'une spacieuse et lumineuse pièce de vie, d'un cellier, de deux Wc séparés, d'une salle de bain, d'un espace de rangement. Elle se compose également de 4 chambres dont une suite parentale avec dressing et salle d'eau privative. Espaces de vie spacieux et lumineux avec des prestations soignées. Conforme aux dernières normes thermiques. N'hésitez pas à nous pour plus d'informations sur ce projet de construction personnalisable selon vos besoins et vos envies. Terrain proposé et vendu par notre partenaire foncier selon disponibilités, le constructeur n'étant pas mandaté pour réaliser la vente du terrain. Prix terrain inclus : 93 000 € Frais de notaire non inclus : € Prix maison inclus : 210 000 € Vrd non inclus : € Hors aménagements extérieurs (extensions, terrasse, piscine etc), papiers peints, peintures, moquettes dans les chambres (tarif en vigueur au 20 mai 2024, modifiable sans préavis, prix variables suivant les prestations souhaitées). Hors frais d'hypothèque. Différents modèles disponibles pour chaque terrain. Assurance Rc professionnelle/décennale/dommage ouvrage groupe Aviva. Garantie de remboursement de l'acompte/livraison à prix et délai convenu Cgi. Contact : [Coordonnées masquées] N° Tva Intracommunautaire : Fr 96 329 833 Tarif en vigueur au 20 mai 2024. Les informations sur les risques auxquels ce bien est exposé sont disponibles sur le site Géorisques : Référence annonce : OF-mander plus d'informations