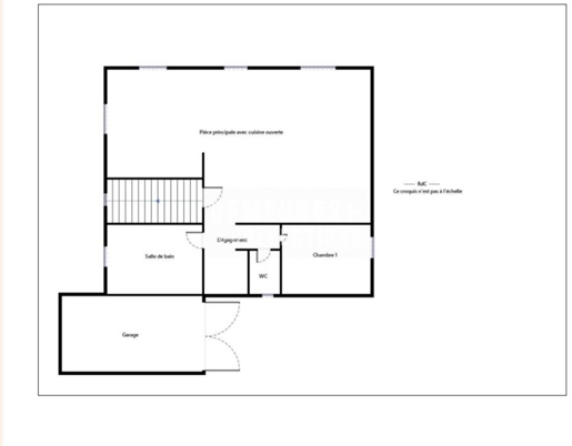
Sur 1560 m² de terrain en partie constructible Découvrez cette maison individuelle idéalement située dans le quartier de Longefoy, à Seez, en direction des prestigieuses stations de Tignes et Val d'Isère. Ce bien rare offre un cadre de vie privilégié avec un grand jardin pour les enfants, tout en restant proche des axes principaux. D'une superficie d'environ 150 m², cette maison de 6 pièces se compose de : Une belle pièce de vie lumineuse avec grandes baies vitrées, Une cuisine aménagée et équipée, 4 chambres confortables, Un bureau et un dressing, Une salle de bains et une salle d'eau. L'ensemble est en excellent état, avec et une ambiance cocooning. Édifiée sur une parcelle de 1 560 m², dont une partie est constructible, cette propriété offre de belles possibilités d'agrandissement, de projet annexe ou tout simplement d'espace pour profiter pleinement des extérieurs, été comme hiver. Cette maison séduira aussi bien les amateurs de ski que les adeptes de détente et de barbecues en plein air. Localisation : Séez Proximité : Accès rapide aux stations de Sainte-Foy-Tarentaise, Tignes, Val d'Isère mais aussi La Rosière ou Les Arcs. A 10 minutes de Bourg-Saint-Maurice, de son funiculaire, de ses commerces, de la gare Sncf et de tous les services. A visiter rapidement avec Mountain Collection Immobilier Contact direct : Julie Prinet-Germain ? [Coordonnées masquées] Mountain Collection Immobilier, c'est le Premier réseau d'agences immobilières des Alpes, regroupant 15 agences dans 13 destinations en stations de ski telles que Les Arcs, La Plagne, Tignes, Val d'Isère, Méribel, Les Ménuires, Serre Chevalier, Flaine, Val Thorens, La Rosière, Bourg Saint Maurice, les 2 alpes ou encore le Corbier. Né au coeur des stations emblématiques et adossé à la Compagnie des Alpes, notre réseau immobilier est 100 % dédié à l'univers alpin. Qu'il s'agisse d'acheter, de vendre, de louer, d'investir ou de confier la gestion d'un bien, notre vocation est simple : faire de la montagne un plaisir? et un investissement judicieux. Grâce à notre ancrage local fort, nos équipes connaissent chaque station sur le bout des spatules. On propose un accompagnement sur mesure, humain et efficace. Mountain Collection, c'est bien plus qu'un réseau d'agences : c'est une nouvelle manière de vivre et de valoriser l'immobilier de montagne, avec agilité, expertise et sourire. Detached House - 6 rooms - Seez On 1,560 m² of partially buildable land Discover this detached house ideally located in the Longefoy area of Seez, on the road to the renowned ski resorts of Tignes and Val d'Isère. With a vey big garden, this unique property offers the perfect environment to fully enjoy mountain life, while remaining close to main access routes. With a surface area of approximately 150 m², this 6-room home features: A bright living area with large bay windows, A fully fitted and equipped kitchen open plan 4 comfortable bedrooms, A home office and dressing room, A bathroom and an additional shower room. The property is in excellent condition, with welcoming atmosphere. Built on a 1,560 m² plot, part of which is buildable, this house offers great potential for extension, a secondary project, or simply the luxury of generous outdoor space for year-round enjoyment. This home will appeal just as much to winter sports enthusiasts as to those who enjoy outdoor living and summer barbecues. Location: Séez Nearby: Quick access to the ski resorts of Sainte-Foy-Tarentaise, Tignes, Val d'Isère, La Rosière, and Les Arcs. Only 10 minutes from Bourg-Saint-Maurice, its funicular, shops, train station, and all local amenities. A must-see with Mountain Collection Immobilier Direct contact: Julie Prinet-Germain ? +33 6