Villa T6 - Piscine - Sous-Sol - Terrasse - Vue Dégagée - Vesancy 01170
Bienvenue chez L'agence immo, votre partenaire immobilier de confiance.
Mélanie Gueyffier, experte immobilier sur le secteur du Pays de Gex et alentours, est ravie de vous présenter cette superbe villa individuelle T6 implantée sur une parcelle de 1 180 m². Construite en 1980 et rénovée en 2024, elle développe 277 m² au sol dont 123,78 m² habitables. Elle offre 5 chambres, une piscine extérieure, un vaste sous-sol et un environnement exceptionnel, nichée au calme absolu dans une impasse verdoyante de Vesancy.
Aménagement intérieur:
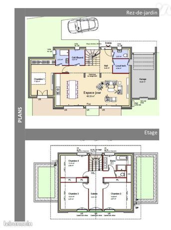
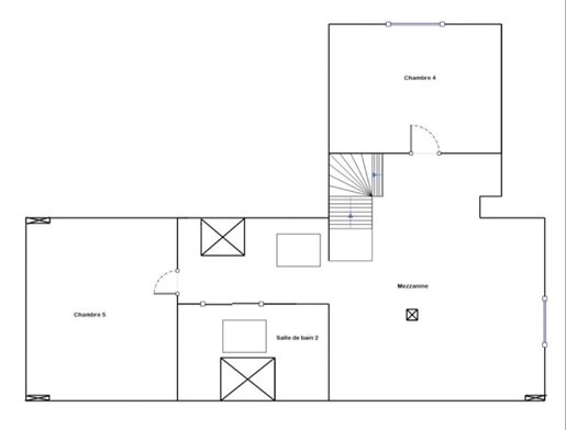
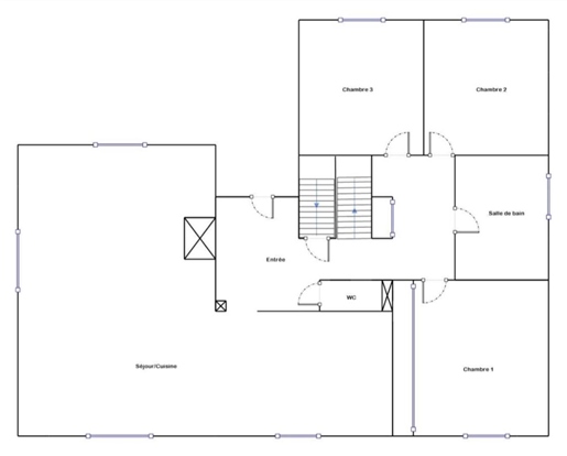
Cette villa s'organise sur trois niveaux et propose un intérieur spacieux et lumineux. Une entrée pratique dessert le séjour-cuisine et l'espace nuit du rez-de-chaussée. Le vaste séjour-cuisine de 45 m², équipé d'une cuisine Schmidt, s'ouvre sur une terrasse prête à être aménagée. Trois chambres sont présentes à ce niveau, ainsi qu'une salle d'eau moderne avec douche, double vasque et Wc, complétée par un Wc indépendant avec lave-mains.À l'étage, les combles ont été aménagés en un espace chaleureux idéal pour les enfants. On y trouve une mezzanine, parfaite pour une salle de jeux, deux chambres mansardées ainsi qu'une salle de bains avec Wc sanibroyeur.Le sous-sol entièrement ouvert réunit garage, atelier, buanderie et chaufferie sur plus de 87 m². Une cave fermée de 20 m² vient compléter cet espace, idéale pour le stockage ou la conservation de vins.
Aménagement extérieur:
La maison bénéficie d'un espace extérieur de plus de 800 m² parfaitement entretenu. Des haies récentes, encore en croissance, ont été plantées afin de préserver l'intimité de la propriétaire. Une grande terrasse de 30 m² domine une superbe piscine au sel de 9x4 m chauffée par pompe à chaleur, et offre une vue dégagée sur les montagnes et la nature environnante. Un potager et plusieurs emplacements de stationnement complètent cet extérieur agréable et fonctionnel.
Prestations et équipements:
La rénovation énergétique de 2024 confère à la maison un confort moderne et durable. Elle dispose d'une pompe à chaleur réversible permettant à la fois de chauffer et de climatiser, d'un poêle à granulés et d'un chauffage au sol sur la partie entrée-séjour. Pour l'eau chaude, un chauffe-eau thermodynamique dessert le rez-de-chaussée, tandis qu'un chauffe-eau classique alimente l'étage. Les volets roulants électriques centralisés, la fibre optique et la cuisine Schmidt viennent enrichir l'ensemble des prestations.
Localisation et commodités:
Implantée dans une impasse au coeur de Vesancy, cette villa profite d'un cadre rare et paisible, véritable havre de paix. À mi-chemin entre Gex et Divonne-les-Bains, vous profitez de toutes les commodités, commerces et établissements scolaires, de la maternelle au lycée, accessibles en quelques minutes seulement. La frontière suisse est également à proximité, ce qui en fait une adresse idéale pour les frontaliers.
Informations complémentaires:
Construite en 1980 et rénovée en profondeur en 2024, cette maison est implantée sur une parcelle individuelle de 1 180 m². Elle est disponible immédiatement et séduit par sa luminosité, ses volumes généreux et son emplacement privilégié dans un environnement verdoyant et calme.
Pour davantage d'informations sur les risques éventuels, rendez-vous sur le site
N'attendez plus pour découvrir cette superbe maison situ...