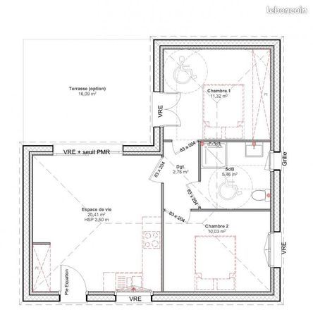
Projet de construction d'une maison 128 m² avec terrain à Villeneuve-Les-Bouloc (31) au prix de 391938€ Villeneuve-Les-Bouloc – Maison Pierre De Soleil. Dans un quartier calme, à la fois très bien exposé mais aussi proche des commerces et services, cette parcelle de notre partenaire foncier, sous réserve de disponibilité, de 1000 m², pourrait accueillir votre projet ! Villas et Maisons de France, constructeur régional expérimenté et avec un process de haute qualité environnementale, est spécialiste de la maison éco responsable sur-mesure. La Maison Pierre de Soleil, d'une superficie de 128m², incarne la fusion élégante du design contemporain et de la fonctionnalité. Cette somptueuse maison à étage comprend 2 chambres, dont un bureau/atelier pour les âmes créatives, ainsi que deux élégantes suites parentales. Au rez-de-chaussée, deux salles de douche offrent un confort inégalé, tandis qu'à l'étage, une salle de bains crée un espace de relaxation ultime. La pièce de vie, spacieuse, avec ses 43m², devient le cœur de la convivialité et du repos. Les larges baies vitrées s'ouvrent sur une superbe terrasse de 48m², vous invitant à profiter de l'air frais en toute quiétude. De plus, un garage de 28m² vous offre un espace sécurisé pour vos véhicules et vos effets personnels. La Maison Pierre de Soleil combine harmonieusement la fonctionnalité et l'esthétique, créant un cocon lumineux et confortable pour une qualité de vie inégalée. Certifié Properméa et avec un process de haute qualité environnementale, Villas et Maisons de France s'engage à réduire l'empreinte carbone de votre projet. Nous garantissons et contrôlons la conformité avec la Re 2020, l'étiquette énergie A, ainsi que la qualité du traitement de l'étanchéité à l'air, le tri sélectif et la valorisation des déchets. Votre interlocuteur dédié vous accompagnera dans toutes les étapes de votre projet, que ce soit pour le financement, l'obtention du permis de construire, ou l'acte authentique d'acquisition du terrain. Dès le début de votre chantier, suivez en temps réel et en images l'avancement de vos travaux grâce à votre Espace Client Privilège. Notre Contrat de Construction de Maison Individuelle vous garantit une construction sûre et durable, avec la Garantie de Livraison, l'Assurance Décennale Dommages Ouvrage, la Garantie de Parfait Achèvement et Biennale. Pour concrétiser votre projet, contactez Bulent Coskun au O6 , et découvrez le compromis entre le calme et la praticité, au coeur d'une maison moderne et contemporaine. Contactez Bulent Coskun au O6 ou au O5 (Villas et Maisons de France). Prix avec assurance dommages-ouvrage comprise, Vrd non compris, terrain viabilisé, frais de notaire non compris, frais divers non compris. Terrain sélectionné et vu pour vous sous réserve de disponibilité et au prix indiqué par notre partenaire foncier. Plans contractuels, visuels non contractuels. Réf. Tmbca6e Cette annonce a été créée et diffusée avec le logiciel Vitahome. Référence annonce : Tmbca6e