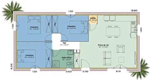
Votre agence Passion Immo by C&L vous propose à la vente une villa T5 avec jardin dans un village calme et à 5 min de Sisteron. Situation : Idéalement située dans le centre du village, cette maison permet de vivre dans un environnement paisible Description intérieure : D'une superficie de 166 m2, cette maison comprend un séjour lumineux ouvert sur la salle à manger cuisine pour une pièce de vie de 70m2, quatre chambres, une salle d'eau et une salle de bain, et un Wc séparé. Avantages extérieurs : Le bien dispose d'un jardin privatif avec une piscine hors sol, idéal pour profiter des beaux jours. Prestations complémentaires : Un grand garage de 105m2 idéal pour vos véhicules et ou du stockage. L'adresse du bien, la vidéo de visite virtuelle et toutes les informations financières sont disponibles en ligne sur notre site -- --
Le prix indiqué comprend les honoraires à la charge du vendeur inclus dans le prix affiché. Les informations sur les risques auxquels ce bien est exposé sont disponibles sur le site Géorisques :
Maisons, appartements, terrains à vendre dans les Alpes de Haute Provence : SisteronSaint Geniez, Meyzien,, Salignac, Sourribes, Volonne, L’escale, Malijai, Mirabeau, Mallemoisson, Aiglun, Le Chaffaut, Digne-les-bains, Marcoux, le Brusquet,la Javie, seyne les alpes, Barcelonnette,le Sauze, Praloup, Vars…….. Peipin, Aubignosc, Château-Arnoux Saint-Auban, Peyruis, Montfort, Les Mées Château-neuf-val-saint-donnat, Mallefougasse, Cruis Noyers-sur-Jabron, Oraison,Manosque, Villeneuve Mison, Ribiers, Laragne, le Poët, Upaix, Ventavon, Valernes, Vaumeilh, Thèze, La Motte du Caire, Le Caire, Faucon du Caire, La Saulce, Tallard, Gap