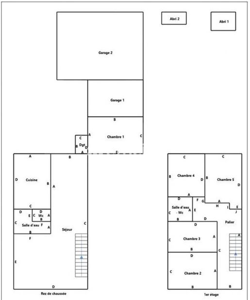
Iad France - Nicolas Calmels vous propose : Maison Familiale De Caractere Avec Dependance Et Piscine - 200 m² Habitables Au calme d’une impasse, maison de caractère aux volumes rares, pensée pour une vie de famille confortable ou un projet de résidence secondaire, avec une dépendance indépendante et un extérieur soigné. Son coeur de charentaise (base 1850, prolongée années 80 puis 2000) est taillée pour les grandes vies de famille — nombreuses, recomposées, multi-générations — offrant une pièce de vie cathédrale de plus de 80 m² Côté nuit : 6 chambres (9 m², 10 m², 12 m², 14,5 m², 11,5 m² avec mezzanine, 21,5 m² avec douche et Wc), salle d’eau indépendante à deux douches et une buanderie. La chambre n°5 (11,5 m²) avec mezzanine est idéale en dressing pour prolonger la suite n°6 (21,5 m²) : en ouvrant les deux, vous créez une suite d’environ 33 m². En complément, une annexe T2 indépendante (40 m²) avec chambre 10 m², salle d’eau, Wc et cuisine aménagée — parfaite pour ado, parent, télétravail ou revenu d’appoint. Jardin clos avec piscine 8 × 4 chauffée par Pac, atelier de 20 m², double entrée sur la parcelle et nombreux stationnements (possibilité de se garer aussi devant). Toiture de la maison principale refaite il y a 9 ans, fibre en place, pièce principale chauffée par poêle à bois et insert avec diffusion d’air dans les chambres 1 à 4. Distribution atypique, elle ne conviendra pas à tous, mais la base est saine et le charme indiscutable est là. Une modernisation mesurée fera le reste. La route principale de Croix-Chapeau ne s’entend pas et les commerces de La Jarrie, son collège et la gare Ter sont à environ 3 minutes. La maison séduit par ses volumes, sa modularité et son potentiel d’évolution. Elle s’adresse à des acquéreurs en recherche d’espace, de confort et d’un projet de vie durable, dans un environnement calme à proximité du littoral. Nicolas Honoraires d'agence à la charge du vendeur. Information d'affichage énergétique sur ce bien : classe Energie E indice 279 et classe Climat B indice 10. Les informations sur les risques auxquels ce bien est exposé, y compris l'obligation légale de débroussaillement, sont disponibles sur le site Géorisques : La présente annonce immobilière a été rédigée sous la responsabilité éditoriale de M Nicolas Calmels mandataire indépendant en immobilier (sans détention de fonds), agent commercial de la Sas France immatriculé au Rsac de La Rochelle sous le numéro , titulaire de la carte de démarchage immobilier pour le compte de la société France SAS.Informations Loi Alur : Honoraires charge vendeur. (Gedeon )