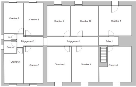
Javerlhac La Chapelle Saint Robert - Sur un terrain clos et arboré de 3236 m², maison d'architecte individuelle, édifiée en 1970's, en pierre de taille moellons, de 300 m² habitables environ, sur deux niveaux à rafraîchir, à vendre à Javerlhac La Chapelle Saint Robert en Dordogne (24) en Périgord vert. Comprenant en rdc une entrée sur une cage d'escalier sur travertin, à gauche un séjour de 41.55 m² sur travertin avec cheminée, un coin repas de 17.97 m² avec cheminée sur travertin, une cuisine aménagée (placards haut et bas) de 10.24 m² sur carrelage, une buanderie, un wc indépendant, à droite de l'entrée, accessible après 3 marches, un bureau de 13,03 m² sur moquette, un dégagement desservant une salle de bains balnéo/wc de 10.88 m² sur lino (baignoire balnéo pour personne handicapée, un lavabo sur colonne, un bidet, un wc), une autre salle de bains/wc de 9.98 m² sur moquette (baignoire, 2 vasques, bidet, douche, wc à part), 2 chambres avec placards aménagés sur moquette et sur plancher, de 13.09 m², 16.34 et une suite parentale de 17.42 m² (chambre avec salle d'eau -douche, bidet, lavabo sur colonne). Dans les combles, un palier avec placard desservant une suite parentale de 21.40 m² sur plancher avec placard (chambre avec salle d'eau - douche, bidet lavabo sur colonne), un espace détente de 19.36 m² sur plancher, un wc indépendant, un dégagement desservant un "appartement" avec un séjour de 24.96 m² sur plancher avec placard, une kitchenette de 5.92 m² sur carrelage, une salle de bains de 5 m² sur carrelage (baignoire, lavabo sur colonne, bidet), une chambre de 16.50 m² sur plancher avec placard. Véranda côté séjour. Combles. Chaufferie et cave en sous-sol. Tout-À-L'égoût. Chauffage central fuel, y compris la production d'eau chaude. Menuiseries métalliques simple vitrage et bois survitrage, volets roulants électriques et manuels Pvc. Un garage indépendant de 60 m² environ, sur chape, divisé en 2 box. Classe énergie E - Classe climat : E - Montant estimé des dépenses annuelles d'énergie pour un usage standard : 8820 à 11980 euros (base 2021) - Prix Hon. Négo Inclus : 234 000 euros dont 6 % Hon. Négo Ttc charge acq. Prix Hors Hon. Négo :230 000 euros - Réf : 077/1491 - Les informations sur les risques auxquels ce bien est exposé sont disponibles sur le site Géorisques: 234 000 euros. 220 000 euros + Honoraires de négo. : 14 000 euros (soit 6,36% à la charge de l'acquéreur)