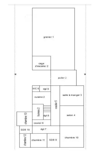
Gagnez un salaire annuel en seulement deux mois sur ce magnifique domaine touristique – et découvrez son énorme potentiel de croissance ! Vous rêvez d’une vie à la campagne, entouré de nature, de charme et de possibilités infinies ? Ce domaine touristique, situé au cœur de la France, vous offre non seulement une magnifique maison, mais aussi une opportunité unique de gagner en seulement deux mois l’équivalent d’un salaire annuel. Et ce n’est que le début. Situé aux abords du célèbre Parc Naturel Régional de la Brenne – bien connu des ornithologues du monde entier – ce domaine plein de charme s’étend sur un terrain de 6,5 hectares. Imaginez : une nature préservée, des collines douces, des arbres majestueux, des ruisseaux paisibles et le silence… et une entreprise florissante prête à être reprise immédiatement. Une expérience de vacances clé en main Dans le bâtiment principal, chargé d’histoire et de caractère, vous trouverez : • Une spacieuse habitation privée avec trois chambres, une grande cuisine, un salon et un bureau. Le rez-de-chaussée de ce bâtiment ancien dégage une atmosphère unique où charme d’antan et confort moderne se rencontrent. La cuisine, exceptionnelle par sa taille (40 m²), invite à cuisiner, savourer et partager. Elle donne sur une vaste salle de petit-déjeuner de 55 m², ornée d’une imposante table artisanale, fabriquée à partir d’anciennes poutres en chêne par un ébéniste. Cette table, à la fois robuste, élégante et rare, est idéale pour des dîners privés dans une ambiance chaleureuse et authentique. Cette salle s’ouvre sur un salon accueillant avec une grande cheminée centrale – un lieu propice à la détente. Les murs en pierre brute, les poutres apparentes en chêne et le chauffage au sol moderne créent une ambiance cosy, agréable en toute saison. Un rez-de-chaussée unique qui marie à la perfection l’authenticité d’hier et le confort d’aujourd’hui – stylé, chaleureux et plein de caractère. • Cinq chambres d’hôtes élégantes Nos cinq chambres d’hôtes, aménagées dans le bâtiment historique, allient luxe et tradition. La plupart sont ornées de poutres en chêne massif, créant une ambiance chaleureuse et raffinée. Chaque chambre est spacieuse et dispose d’une salle de bain moderne avec douche à l’italienne, double vasque et toilettes séparées. L’Une des chambres est accessible aux personnes à mobilité réduite, et une autre est conçue comme chambre familiale : une suite composée d’une grande chambre principale et d’une chambre pour enfants séparée, avec également une salle de bain généreuse. Le domaine comprend également : • Deux gîtes entièrement équipés (env. 120 m² chacun), chacun avec jardin et terrasse privatifs Ces deux gîtes conservent tout le charme de l’ancien, sans sacrifier le confort moderne. Poutres en chêne, murs en pierre et éléments classiques donnent à chaque logement un caractère unique. Ils disposent d’une douche à l’italienne, d’un lavabo, de toilettes séparées et de tout le nécessaire pour un séjour agréable. L’Un des gîtes possède en plus une baignoire lumineuse et élégante – idéale pour se détendre. À l’extérieur, chaque gîte bénéficie d’un jardin privatif et d’un barbecue. • Quatre tentes lodges Xxl sur plateformes en bois avec électricité, pour des séjours aventureux avec confort • Une salle de restaurant (100 m²) avec cuisine professionnelle (50 m²) et cave à vin Notre salle à manger authentique est le cœur vibrant du domaine – un espace impressionnant qui raconte l’histoire du lieu. Avec ses murs en pierre brute, sa cheminée monumentale et ses poutres massives à plus de cinq mètres de hauteur, elle dégage une élégance rustique à la fois chaleureuse et majestueuse. La cheminée, conçue spécialement pour les rôtissoires, comprend un brasero sur mesure et un tournebroche réalisé par un ferronnier d’art – une invitation à cuisiner à l’ancienne, dans un esprit artisanal. Un éclairage soigné met en valeur le caractère de la salle, tandis que le bar intégré crée une ambiance conviviale. Un côté donne sur la piscine, l’autre sur la cour intérieure – chaque vue renforce le sentiment de calme et de beauté. Un puissant poêle à pellets chauffe facilement 500 m³, assurant un confort optimal toute l’année. Qu’Il s’agisse d’un dîner intime, d’une fête ou d’un moment partagé au coin du feu, cette salle incarne chaleur, style et charme intemporel. • Une grande terrasse couverte avec bar convivial et sanitaires Attenante à la salle de restaurant, une vaste terrasse abritée accueille confortablement tables et chaises. Les invités peuvent y profiter de la nature tout en admirant la piscine, les plantations et les prairies environnantes. Le bar extérieur, aménagé avec goût, favorise une ambiance détendue et conviviale. Des toilettes supplémentaires sont à disposition pour le confort des invités. Ce lieu polyvalent est idéal pour tous types d’événements – dîners privés, mariages festifs, retraites bien-être, ateliers, séminaires ou weekends gastronomiques. La salle et la terrasse offrent toutes les conditions pour accueillir avec style. • Un salon de massage et des sanitaires bien entretenus • Une piscine chauffée (15x8 m) et une pataugeoire • Divers espaces de stockage et des possibilités d’agrandissement On se croirait en vacances, mais on se sent chez soi – et ça fonctionne ! Le concept est solide. Avec une capacité d’accueil de 50 personnes et une salle à manger pouvant accueillir jusqu’à 90 convives, ce domaine attire chaque saison des familles, des amoureux de la nature et des vacanciers en quête de calme. Les propriétaires actuels ont développé un concept touristique performant qui fait ses preuves chaque année. En deux mois d’activité intense, ils réalisent l’équivalent d’un salaire annuel. Mais ce n’est pas tout. Croissance, expansion et esprit entrepreneurial Le potentiel de développement est immense : Pensez à des retraites bien-être, mariages, semaines de yoga, ateliers, anniversaires, weekends gourmands, et bien plus encore. Et le plus beau ? Tout est prêt à l’emploi. Mobilier, équipement, matériel de cuisine, outillage de jardin – tout reste sur place. Vous pouvez démarrer immédiatement. En résumé… Une occasion unique de vivre, travailler et s’épanouir dans un lieu magique où l’on crée du bonheur, on génère du chiffre d’affaires, et on réalise ses rêves. Et avec les nombreuses possibilités de croissance encore à saisir, ce projet de vie devient aussi un investissement solide. Prêt(E) à changer de vie, adopter la nature et atteindre l’indépendance financière dans un lieu qui ressemble à des vacances ? Alors ce domaine est fait pour vous ! Prix de vente honoraires inclus : 1.350.000 €. Honoraires charge acquéreur. Honoraires : 6 % Ttc du prix hors honoraires. Prix de vente hors honoraires : 1.273.585 euros. Classe énergie : C. Classe climat : A. Montant estimé des dépenses annuelles d'énergie pour un usage standard : entre 4.930 et 6.730 euros par an. Prix indexés sur 2021, 2022 et 2023. Les informations sur les risques auxquels ce bien est exposé sont disponibles sur le site Géorisques :