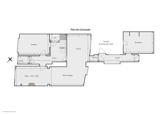
Située dans un hameau à proximité du village de Fanjeaux, village avec commerces et services et à une heure de Toulouse et de son aéroport international, propriété composée d'une maison principale, d'un gîte de 184,18 m2, d'un garage, bâtie sur une parcelle de 6,38 ha dont 6ha de bois. D'une surface habitable de 239,83 m2, l'habitation principale se compose de : au 1er étage : un hall, un séjour/ salon de 115 m2 (cuisine à créer) ouvrant sur une terrasse de 50 m2 exposée Sud, un Wc. Au 2ème étage : un palier, une chambre en suite de 26 m2 avec salle d'eau et Wc, une chambre de 17,44 m2 avec salle d'eau / Wc, une chambre de 23 m2 avec salle d'eau / Wc. Au rez-de-jardin un espace garage de 160 m2 et un espace cave de 47 m2.<br> D'une surface habitable de 184,18 m2, le gîte se compose de : Au rez-de-chaussée : un garage de 45 m2, un carport de 40 m2, un séjour / cuisine de 43 m2. Au 1er étage : un salon de 16,78 m2, un couloir, une chambre de 17,29 m2, une chambre en suite de 23,25 m2 avec dressing de 3,8 m2 et salle de bain avec Wc, un dressing de 5 m2, une salle d'eau et un Wc. Au 2ème étage du gîte : un séjour cuisine de 35,32 m2, ouvrant sur une terrasse de 21 m2, un Wc, une chambre en suite de 14,2 m2 avec placard et salle de bain.<br> Possibilité d'acquérir avec un supplément de 33 000€ : un grand hangar de 284 m2 avec entrée indépendante, mitoyen à l'arrière de la maison.<br>Cette annonce vous est proposée par M. Denis Ratoret - Ei - NoRSAC: , Enregistré à Chambre de commerce et de l'industrie de Carcassonne spécialiste de l'immobilier Limouxin, Razès, Haute-Vallée de l'Aude, Quercorb, Mirepoix, Plateau de Sault, Corbières vertes, depuis plus de 30 ans. Nous parlons Anglais